Kể từ thời điểm ra mắt, Tòa The Senique 1 thuộc dự án The Senique Hanoi (Vinhomes Ocean Park) đã chứng minh sức hút mãnh liệt khi 100% bảng hàng từ Chủ đầu tư nhanh chóng tìm thấy chủ nhân. Bước sang năm 2026, khi dự án đang băng băng về đích để kịp tiến độ bàn giao vào tháng 8/2027, thị trường chuyển nhượng tòa The Senique 1 trở thành tâm điểm của giới đầu tư và khách hàng mua ở thực. Mua lại trên thị trường thứ cấp hiện tại là "cánh cửa duy nhất" để sở hữu không gian sống hạng sang kế cận hồ Ngọc Trai với mức giá cực kỳ tối ưu.

1. Tại sao Quỹ Căn Chuyển Nhượng The Senique 1 Lại Được Săn Đón?
Sở hữu chiều cao 37 tầng với giới hạn chỉ 726 căn hộ, The Senique 1 thiết lập tiêu chuẩn sống thượng lưu với mật độ cực thấp (chỉ 16 - 24 căn/sàn) và hệ thống 10 thang máy hiện đại (7 thang khách, 3 thang hàng). Việc mua lại căn hộ chuyển nhượng thời điểm này mang đến lợi thế kép: Vừa sở hữu tài sản chắc chắn chuẩn bị bàn giao, vừa có cơ hội thương lượng giá cực tốt từ những nhà đầu tư F0 có nhu cầu thu hồi vốn.

2. Bảng Giá Chuyển Nhượng Tòa The Senique 1 (Cập Nhật 2026)
Hiện nay, giỏ hàng mua bán The Senique 1 đang ghi nhận mức giá chuyển nhượng vô cùng đa dạng, từ cắt lỗ nhẹ phí sang tên cho đến chênh giá đối với các căn góc view hồ trực diện. Dưới đây là khung giá tham khảo cho từng loại hình:
| Loại Hình Căn Hộ | Diện Tích Lọt Lòng | Khoảng Giá Chuyển Nhượng (Tỷ VNĐ) | Đánh Giá Mức Độ Khan Hiếm |
|---|---|---|---|
| Căn 1PN | 42 m² | 3.45 – 3.75 | Cực hiếm, ra hàng là chốt |
| Căn 2PN | 53.5 – 81.3 m² | 4.10 – 6.80 | Sẵn nhiều lựa chọn tầng/hướng |
| Căn 3PN | 83.2 – 107.5 m² | 6.50 – 8.80 | Được săn lùng mạnh tay |
| Căn 4PN | 153.6 – 187.4 m² | 12.50 – 16.50 | Quỹ căn giới hạn (Khách VIP) |
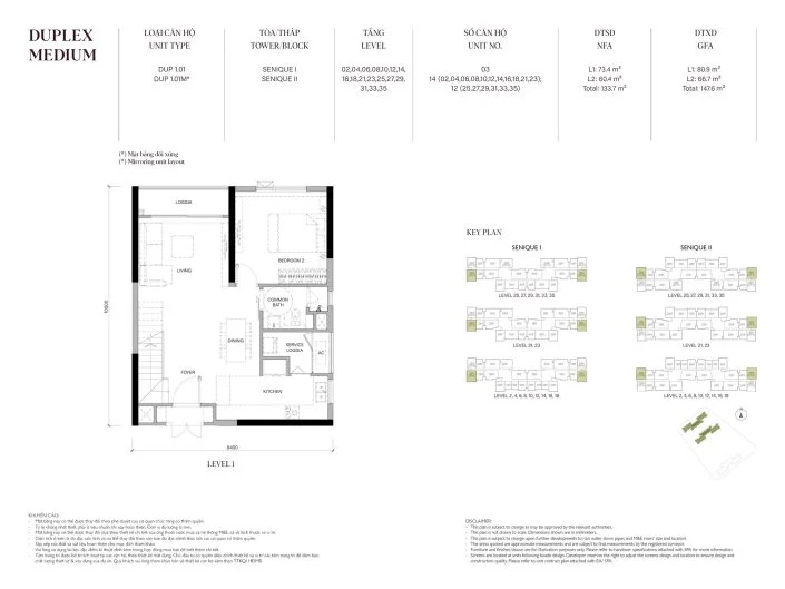
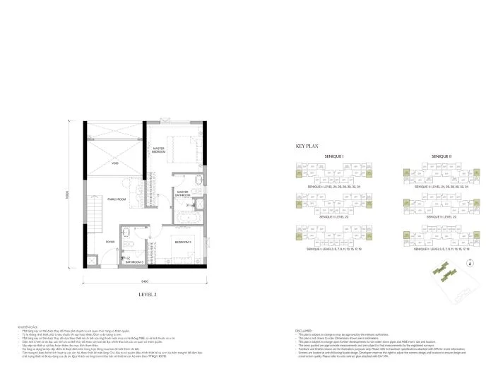
| Căn Duplex | 117.5 – 189.5 m² | 10.50 – 18.00 | Thiết kế độc bản, hiếm có người bán lại |
*Lưu ý: Mức giá trên bao gồm toàn bộ thuế, phí chuyển nhượng Hợp đồng mua bán. Khách hàng vui lòng liên hệ trực tiếp để kiểm tra mã căn thực tế đang chào bán.
3. Vị Trí Tạo Nên Giá Trị Thanh Khoản Vượt Trội
Một trong những lý do khiến khách hàng mua thứ cấp luôn ưu tiên tòa tháp này chính là vị trí kim cương ngay ngã tư Đại Tây Dương, Biển Hồ 6 và Biển Hồ 10. Đặc biệt, đặc quyền tiếp giáp trực tiếp nhà để xe nổi 5 tầng giúp xóa bỏ hoàn toàn áp lực thiếu chỗ đỗ ô tô - bài toán nan giải của nhiều khu đô thị hiện nay.
Bên cạnh đó, The Senique 1 không bị che chắn bởi các công trình cao tầng khác nhờ được bao bọc bởi khu shophouse thương mại, trường học quốc tế và tầm nhìn mở rộng ra hồ Đảo Cọ.

4. Chi Tiết Mặt Bằng Căn Hộ Chuyển Nhượng Đang Giao Dịch
Tùy thuộc vào gu thẩm mỹ và tài chính, khách hàng có thể lựa chọn các căn hộ chuyển nhượng theo từng cụm tầng với những ưu điểm riêng biệt về tầm view và thiết kế.
Khảo Sát Mặt Bằng Phân Tầng
Tầng 2 đến Tầng 19: Quỹ căn lý tưởng cho khách hàng thích mức giá "mềm" và tầm nhìn trực diện cảnh quan nội khu, bể bơi Fjord.


Tầng 20 (Tầng Tiện Ích): Điểm nhấn với vườn thiền chân mây. Rất hiếm chủ nhà chịu nhượng lại căn hộ cùng tầng này vì giá trị tận hưởng quá cao.

Tầng 21 đến Tầng 35: Thuộc nhóm "Best-seller" trên thị trường chuyển nhượng nhờ tầm nhìn panorama tuyệt mỹ bao quát hồ Ngọc Trai.




Tầng 36 & 37: Không gian giới hạn của giới tinh hoa, nơi tọa lạc của các căn hộ diện tích lớn và Penthouse đỉnh cao.


Các Loại Hình Căn Hộ Đang Giao Dịch
Thị trường sang nhượng đáp ứng mọi nhu cầu với sự phân bổ thiết kế vô cùng thông minh từ Chủ đầu tư.
Căn Hộ 1 Phòng Ngủ (42 m2)

Căn Hộ 2 Phòng Ngủ (53.5m2 - 81.3m2)

Căn Hộ 3 Phòng Ngủ (83.2m2 - 107.5m2)

Căn Hộ 4 Phòng Ngủ (153.6m2 - 187.4m2)

Căn Hộ Duplex Thông Tầng (117.5m2 - 189.5m2)

5. Không Gian Sống Tiện Nghi Làm Tăng Giá Trị Mua Bán
Mua lại căn hộ The Senique 1, cư dân tương lai sẽ được thừa hưởng trọn vẹn cụm tiện ích đặc quyền định hình phong cách sống resort. Điển hình là công viên nhiệt đới nội khu, bể bơi Fjord dài 50m chuẩn Olympic, vườn nướng BBQ rợp bóng mát.

Ngay trong tòa nhà là hệ thống tiện ích đẳng cấp không kém cạnh bất kỳ khách sạn 5 sao nào: Phòng Gym, Yoga, Golf 3D, phòng xông hơi tại tầng 1 và hệ thống Vườn thiền, Co-working tại tầng 20.

Ban công rộng rãi kết hợp với kính Low-E tràn viền giúp căn hộ tận dụng tối đa ánh sáng tự nhiên và mở ra tầm view vô cực đắt giá, minh chứng cho một quyết định đầu tư an cư hoàn hảo.

Quý khách hàng quan tâm mua bán - chuyển nhượng căn hộ Tòa The Senique 1 vui lòng liên hệ ngay để nhận quỹ căn cắt lỗ, giá tốt nhất thị trường cùng hỗ trợ trọn gói thủ tục pháp lý sang tên HĐMB an toàn, nhanh gọn!