Kể từ khi chính thức ra mắt, Tòa The Senique 2 mang đậm phong cách Singapore thuộc siêu dự án The Senique Hanoi (Vinhomes Ocean Park) đã tạo nên sức nóng vô tiền khoáng hậu và nhanh chóng cháy hàng 100% rổ hàng sơ cấp từ Chủ đầu tư. Hiện tại, để gia nhập cộng đồng tinh hoa bên hồ Ngọc Trai 24.5ha, hình thức mua bán chuyển nhượng The Senique 2 trên thị trường thứ cấp chính là "cửa sáng" duy nhất và tối ưu chi phí nhất dành cho giới đầu tư lẫn khách hàng mua ở thực trong năm 2026.
Sở hữu lợi thế tiến độ xây dựng thần tốc (dự kiến bàn giao tháng 8/2027) cùng hành lang pháp lý minh bạch (sang tên trực tiếp Hợp đồng mua bán), việc mua lại quỹ căn chuyển nhượng ngay thời điểm này giúp khách hàng sở hữu "siêu phẩm" với mức giá mềm hơn đáng kể so với việc chờ đợi các phân khu mở bán sau.

1. Bảng giá Chuyển Nhượng Tòa The Senique 2 Mới Nhất (Cập nhật 2026)
Thị trường chuyển nhượng The Senique 2 đang chứng kiến lượng giao dịch nhộn nhịp. Tùy thuộc vào vị trí tầng, hướng view (nhìn ra bể bơi Fjord hay hồ Đảo Cọ) mà mức giá sẽ dao động từ bán ngang giá vốn, cắt lỗ nhẹ phí sang tên cho đến chênh nhẹ. Dưới đây là bảng giá mua bán thứ cấp trung bình đang được giao dịch thực tế:
| Loại Hình Căn Hộ | Diện Tích (m²) | Mức Giá Chuyển Nhượng Tham Khảo (Tỷ VNĐ) | Tình Trạng Giỏ Hàng Thứ Cấp |
|---|---|---|---|
| Căn 1PN | 42 m² | Từ 3.45 – 3.75 Tỷ (Bao trọn phí sang tên) | Ra hàng là chốt, cực khan hiếm |
| Căn 2PN | 53.5 – 81.3 m² | Từ 4.1 – 6.8 Tỷ (Tùy view Nội khu/View Hồ) | Đang sẵn nhiều căn góc đẹp |
| Căn 3PN | 83.2 – 107.5 m² | Từ 6.5 – 8.8 Tỷ (Tầm nhìn panorama thoáng) | Nhiều lựa chọn chênh nhẹ |
| Căn 4PN | 153.6 – 187.4 m² | Từ 12.5 – 16.5 Tỷ | Khách VIP ký gửi số lượng ít |
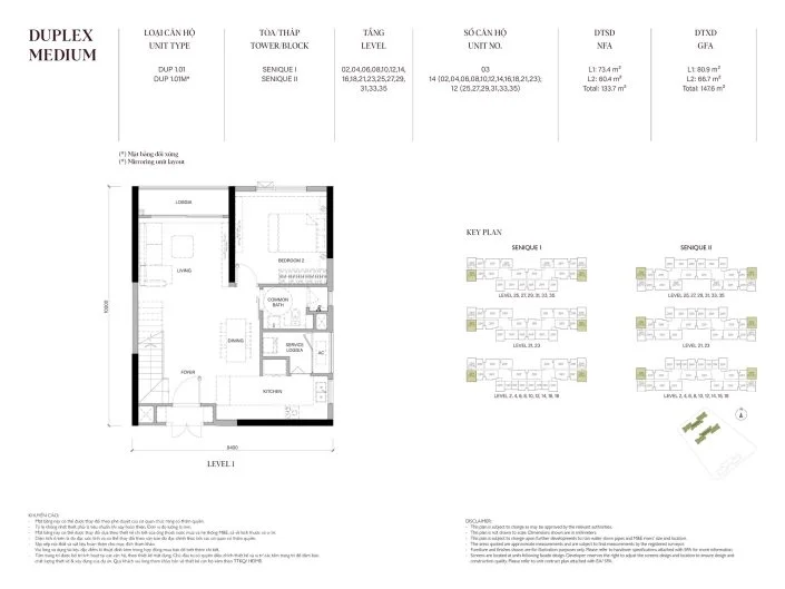
| Căn Duplex | 117.5 – 189.5 m² | Từ 10.5 – 18.0 Tỷ | Chỉ còn sót lại 2-3 căn chủ gửi bán |
* Lưu ý: Giá bán báo tới khách hàng đã bao gồm toàn bộ thuế, phí, lệ phí chuyển nhượng HĐMB và 2% Kinh phí bảo trì. Vui lòng liên hệ trực tiếp để check mã căn chi tiết.
2. Tại sao nên bắt đáy Chuyển Nhượng The Senique 2 ngay lúc này?
- Thủ tục pháp lý an toàn 100%: Giao dịch sang tên Hợp đồng mua bán được thực hiện trực tiếp tại văn phòng Chủ đầu tư, đảm bảo tính minh bạch và chuẩn xác tuyệt đối.
- Thời điểm vàng trước bàn giao: Dự kiến nhận nhà vào tháng 08/2027. Việc mua thứ cấp giúp bạn tránh được sự đọng vốn quá lâu, trong khi vẫn hưởng trọn biên độ tăng giá khi dự án hoàn thiện tiện ích.
- Đặc quyền lựa chọn giỏ hàng "Hoa hậu": Những khách hàng trượt bốc thăm đợt 1 nay hoàn toàn có cơ hội nhặt lại các căn tầng trung, căn góc view hồ Ngọc Trai, view bể bơi Fjord tuyệt đẹp từ các nhà đầu tư chốt lời sớm.
3. Thiết kế & Quy hoạch: Bảo chứng cho thanh khoản của The Senique 2
The Senique 2 giữ vững vị thế là tháp căn hộ được thèm khát nhờ thông số quy hoạch chuẩn hạng sang: Cao 37 tầng, mật độ cực thấp (chỉ 16-24 căn/sàn) với tổng số 726 căn hộ. Hệ thống giao thông trục đứng gồm 10 thang máy hiện đại (7 thang khách, 3 thang hàng) đảm bảo lưu thông thông suốt.

3.1 Tọa độ vàng - Tâm điểm kết nối
Sức hút chuyển nhượng của The Senique 2 một phần lớn đến từ vị trí chiến lược ngay ngã tư huyết mạch Đại Tây Dương và Biển Hồ 6. Không chỉ kế cận hệ thống trường học quốc tế, tòa tháp còn nằm sát khu vực nhà để xe nổi, giải quyết dứt điểm nỗi lo tìm chỗ đỗ ô tô của tầng lớp cư dân tinh hoa.

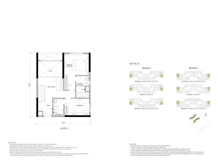
3.2 Phân tích Mặt bằng các quỹ căn đang chuyển nhượng
Dựa trên thiết kế layout của tòa nhà, giá bán lại có sự phân hóa theo cụm tầng. Dưới đây là mặt bằng chi tiết để quý khách thuận tiện đối chiếu mã căn đang đàm phán:
Cụm tầng 2 - 19 (Tầng thấp & trung): Ưu thế giá rẻ, view trọn vẹn tiện ích nội khu xanh mát phong cách Singapore

Tầng 20: Điểm nhấn Vườn thiền chân mây (Cực ít giao dịch thứ cấp do chủ nhà muốn giữ lại để hưởng thụ)

Cụm tầng 21 - 35 (Tầng cao): Không gian khoáng đạt, view panorama thẳng ra hồ Đảo Cọ và hồ Ngọc Trai (Quỹ căn được săn mua nhiều nhất)

Tầng 36 & 37 (Penthouse/Duplex): Bộ sưu tập giới hạn định danh giới siêu giàu, thanh khoản với mức giá chênh hấp dẫn

3.3 Phân loại các mẫu căn hộ đang giao dịch thứ cấp
Căn hộ 1PN (42 m2): Thanh khoản dẫn đầu thị trường, phù hợp đầu tư cho thuê hoặc gia đình trẻ.

Căn hộ 2PN (53.5m2 - 81.3m2): Cân bằng hoàn hảo giữa tầm tài chính và không gian sống.

Căn hộ 3PN (83.2m2 - 107.5m2): Diện tích rộng rãi, mua lại để an cư đa thế hệ cực kỳ tối ưu.

Căn hộ 4PN & Duplex Thông Tầng (117.5m2 - 189.5m2): Của hiếm trên thị trường thứ cấp.

4. Hệ tiện ích Resort: Bệ phóng tăng giá bền vững
Một yếu tố then chốt khiến giới tinh hoa sẵn sàng chi tiền mua sang nhượng The Senique 2 là hệ sinh thái tiện ích nội khu mang đậm âm hưởng cảnh quan Singapore. Điểm sáng lớn nhất là tổ hợp bể bơi ngoài trời Fjord dài 50m chuẩn Olympic, xen kẽ cùng vườn thảo mộc, khu vui chơi trẻ em và đường dạo bộ xanh mát.

Bước vào tòa nhà, cư dân được đón tiếp tại sảnh lễ tân 5 sao, trải nghiệm không gian tập Gym, Yoga, phòng xông hơi và phòng Golf 3D tại khối đế tầng 1. Tầng 20 tiếp tục khẳng định đặc quyền với không gian làm việc sáng tạo và vườn thiền thư thái.

Về tầm nhìn, mua chuyển nhượng The Senique 2 cho phép bạn sở hữu trọn vẹn view panorama đắt giá. Các căn hướng Đông Nam nhìn trọn vẹn chéo ra hồ Ngọc Trai 24.5ha, hướng Tây Bắc chiêm ngưỡng hồ bơi Fjord, trong khi cụm Tây Nam/Đông Bắc lại bao quát trọn vẹn hồ Đảo Cọ thanh bình.

Quy trình Hỗ trợ Chuyển Nhượng Trọn Gói
Để đảm bảo quyền lợi và sự an tâm tuyệt đối cho quá trình mua bán, chúng tôi mang tới dịch vụ hỗ trợ thủ tục sang tên HĐMB The Senique 2 chuẩn xác, hợp pháp 100% bao gồm:
- Khớp nối nhu cầu, thương lượng giá chốt trực tiếp giữa người mua và người bán.
- Lo liệu toàn bộ quy trình kê khai thuế thu nhập cá nhân, công chứng vi bằng/chuyển nhượng.
- Đồng hành làm việc cùng Chủ đầu tư để cấp xác nhận sang tên HĐMB mới nhất.
- Hỗ trợ xử lý hồ sơ vay vốn ngân hàng nối khoản (nếu HĐMB cũ đang thế chấp).
LIÊN HỆ NHẬN QUỸ CĂN CHUYỂN NHƯỢNG CẮT LỖ/ GIÁ TỐT NHẤT HÔM NAY